Добро пожаловать на http://vipplan.ru

Випплан Кстово - это тысячи проектов домов в нашем каталоге!

Вы всегда сможете найти для себя проект дома вашей мечты! Даже если этого не случилось, мы готовы в любую минуту предложить проект индивидуального дома.

Забыли пароль?
Вы еще не регистрировались?

Перейдите по ссылке ниже на страницу регистрации.

Регистрация...

Внимание!!!

В проектную документацию могут быть внесены изменения любой сложности, в соответствии в Вашими пожеланиями!

Полезные статьи

Типы и разновидности кровли

Кровля состоит из сплошного настила, стяжки и обрешетки, поддерживающих стропила и несколько слоев изоляции, призванных уберечь кровельное пространство от негативного воздействия пара и влаги....

Системы утепления фасада

Основные тепловые потери происходят через стены, фундамент и крышу. Уменьшить их можно с помощью утеплителя, создав внутри дома оптимальный для жизни климат, с достаточно ровным температурным режимом и низкой влажностью....

Проекты домов и коттеджей > Каталог проектов домов > Проект просторного двухэтажного коттеджа с гаражом Vg2334

Проект просторного двухэтажного коттеджа с гаражом Vg2334

Проект просторного двухэтажного коттеджа с гаражом
Зарегистрируйтесь

Проект № Vg2334


Техническое описание
Общая площадь: 195.9 м2
Жилая площадь: 91.51 м2
Высота здания: 8.75 м
Размеры дома: 11.06м×15.28м
Кол-во комнат: 5
Цокольный этаж: нет
Гараж: нет
Мансарда: нет

Kонструкция
Фундамент: Стена в грунте
Перекрытия: Сборные ж/б плиты
Материал стен: Кирпич

Архитектурный раздел
Конструктивный раздел
АР+КР - 60 000 (Со скидкой 20%)
Проект индивидуального двухэтажного жилого дома с размерами 11,06 x 15,28 м. Наружная отделка здания – облицовочный кирпич. Цоколь – клинкерная плитка. Фундамент – стена в грунте (щелевой). Наружные стены запроектированы из: забутовочного кирпича, утеплителя и облицовочного кирпича. Внутренние стены и перегородки - из забутовочного кирпича. Перемычки - монолитные и сварные из профиля проката. Перекрытие межэтажное – сборные ж/б плиты перекрытия. Крыша - четырехскатная. Материал кровли – металлочерепица. Окна - металлопластиковые, выполненные по индивидуальному заказу.
Генплан застройки участка / Паспорт проекта 7000 руб / 10000 руб
Инженерный раздел (полный) 98000 руб
Смета на строительство 49000 руб
Теплотехнический расчет материалов стен Бесплатно
Стоимость проекта со незначительнми изменениями 70100 руб
Стоимость проекта со средними изменениями* 84800 руб
Стоимость проекта со значительными изменениями** 88700 руб

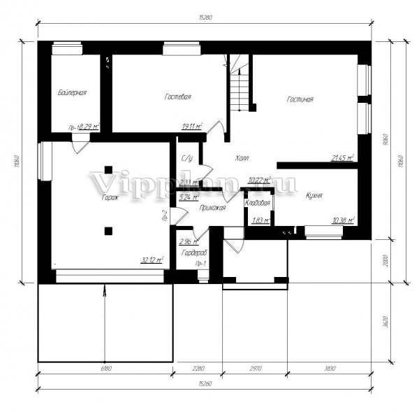
План первого этажа


Прихожая — 5,24 кв м
Гардероб — 2,96 кв м
Холл — 10,22 кв м
С/у — 2,33 кв м
Гостевая — 19,11 кв м
Бойлерная — 8,29 кв м
Гараж — 32,12 кв м
Кладовая — 1,83 кв м
Кухня — 10,38 кв м
Гостиная — 21,45 кв м

Проект просторного двухэтажного коттеджа с гаражом

Проект просторного двухэтажного коттеджа с гаражом

План второго этажа


Балкон — 7,03 кв м
Спальня — 16,96 кв м
С/у — 7,88 кв м
Гардероб — 10,51 кв м
Холл — 10,67 кв м
Спальня — 18,30 кв м
Спальня — 15,96 кв м
Проект просторного двухэтажного коттеджа с гаражом Проект просторного двухэтажного коттеджа с гаражом Проект просторного двухэтажного коттеджа с гаражом Проект просторного двухэтажного коттеджа с гаражом
Внесение изменений и привязка к участку строительства

В любой из проектов от компании VIPplan - Кстово по вашему желанию могут быть внесены изменения в материалы стен, материалы наружной отделки дома, а также будет произведена адаптация проекта под конкретный регион строительства (с учетом грунтов региона, геологических особенностей вашего участка и местных климатических условий) - БЕСПЛАТНО !!! (кроме проектов со скидкой и проектов наших партнеров).

Любой из проектов, размещенных на сайте kstovo.vipplan.ru мы можем выполнить из требуемых вам строительных материалов: ячеистый бетон (газобетон, пеноблок), керамоблок, кирпич, шлакоблок, бетонный блок, дерево (брус, клееный брус), каркасная технология (деревянный каркас, металлокаркас (ЛСТК)).

Фасад дома и его наружную отделку так же возможно выполнить с применением различных облицовочных материалов: структурной штукатурки, (с утеплителем и без), сайдингом (пластиковый или металлосайдинг), фиброплитами, кирпича.

 
6 Избранные
проекты

Доставка проектов по России: Москва (Московская область), Санкт-Петербург (Ленинградская область), Краснодар, Ростов-на-Дону, Ставрополь, Сочи, Волгоград, Новосибирск, Белгород, Брянск, Воронеж, Саратов, Хабаровск, Астрахань, Нальчик, Владикавказ, Екатеринбург, Тюмень, Самара, Нижний Новгород, Казань, Пермь, Уфа, Челябинск, Красноярск, Ханты-Мансийск, Иркутск, Курган, Оренбург, Омск, Томск, Барнаул, Новокузнецк, Кемерово, Абакан, Чита, Якутск, Южно-Сахалинск, Петропавловск-Камчатский и страны ближнего зарубежья: Белоруссия, Украина, Казахстан