Добро пожаловать на http://vipplan.ru

Випплан Кстово - это тысячи проектов домов в нашем каталоге!

Вы всегда сможете найти для себя проект дома вашей мечты! Даже если этого не случилось, мы готовы в любую минуту предложить проект индивидуального дома.

Забыли пароль?
Вы еще не регистрировались?

Перейдите по ссылке ниже на страницу регистрации.

Регистрация...

Внимание!!!

В проектную документацию могут быть внесены изменения любой сложности, в соответствии в Вашими пожеланиями!

Полезные статьи

Утепление стен дома изнутри

Утепление стен дома изнутри – это не правильный метод теплоизоляции помещения и используется в самом крайнем случае, когда других вариантов уже не остается. Как правило, утепление стен изнутри выполняется по незнанию или вынужденно, поскольку, теплоизоляция внутренних помещений дома другим способом невозможна. Вопросы теплоизоляции необходимо решать на стадии проектирования дома или коттеджа, а не тогда когда дом уже построен и приходится исправлять совершенные ошибки по факту....

Выбор проекта дома в Кстове. Типовой или индивидуальный?

Строительство дома начинается с выбора проекта. От него будет зависит удобство, комфорт и функциональность Вашего будущего дома. Какой проект выбрать? В каталоге проектов домов VIPplan Кстово предоставлен огромный выбор проектов на любой вкус и кошелек. В итоге выбор сводится к покупке типового проекта дома или заказа индивидуального проекта. Для упращения задачи, расскажем о каждом варианте по отдельности...

Проекты домов и коттеджей > Каталог проектов домов > Проект двухэтажного дома c большим гаражом и террасой Vg1322

Проект двухэтажного дома c большим гаражом и террасой Vg1322

Проект двухэтажного дома c большим гаражом и террасой
Зарегистрируйтесь

Проект № Vg1322


Техническое описание
Общая площадь: 275.94 м2
Жилая площадь: 129.4 м2
Высота здания: 9.58 м
Размеры дома: 21.26м×19.88м
Кол-во комнат: 6
Цокольный этаж: нет
Гараж: нет
Мансарда: нет

Kонструкция
Фундамент: Ленточный из блоков ФБС
Перекрытия: Ж/б плиты
Материал стен: Газобетон

Архитектурный раздел
Конструктивный раздел
АР+КР - 72 000 (Со скидкой 20%)
Проект индивидуального двухэтажного жилого дома с размерами здания 21,26 х 19,88 м. Наружная отделка здания – облицовочный кирпич. Фундамент – ленточный из блоков ФБС (под несущими стенами). Наружные стены – газобетонные блоки, утеплитель - экструдированный пенополистирол, воздушный зазор, отделка - облицовочный кирпич Внутренние стены - газобетонные блоки. Перегородки – кирпич . Пол 1 этажа - пол по грунту. Межэтажное перекрытие – ж/б плиты.Чердачное перекрытие - деревянные балки. Крыша - металлочерепица. Кровля – четырехскатая. Окна - металлопластиковые, выполненные по индивидуальному заказу.
Генплан застройки участка / Паспорт проекта 7000 руб / 10000 руб
Инженерный раздел (полный) 138000 руб
Смета на строительство 69000 руб
Теплотехнический расчет материалов стен Бесплатно
Стоимость проекта со незначительнми изменениями 83100 руб
Стоимость проекта со средними изменениями* 103800 руб
Стоимость проекта со значительными изменениями** 109300 руб

План первого этажа


Гараж — 50,50 кв м
Бойлерная — 11,17 кв м
Кладовая — 8,70 кв м
Кабинет — 15,34 кв м
С/у — 4,84 кв м
Холл — 17,98 кв м
Тамбур — 4,90 кв м
Крыльцо — 3,50 кв м
Кладовая — 2,62 кв м
Кухня — 15,22 кв м
Гостиная — 35,67 кв м

Проект двухэтажного дома c большим гаражом и террасой

Проект двухэтажного дома c большим гаражом и террасой

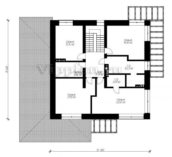
План второго этажа


Спальня — 15,34 кв м
Спальня — 19,30 кв м
С/у — 12,43 кв м
С/у — 3,59 кв м
Холл — 7,73 кв м
Гардероб — 6,86 кв м
Спальня — 21,10 кв м
Спальня — 22,65 кв м
Проект двухэтажного дома c большим гаражом и террасой Проект двухэтажного дома c большим гаражом и террасой Проект двухэтажного дома c большим гаражом и террасой Проект двухэтажного дома c большим гаражом и террасой

Модификации проектов

Внесение изменений и привязка к участку строительства

В любой из проектов от компании VIPplan - Кстово по вашему желанию могут быть внесены изменения в материалы стен, материалы наружной отделки дома, а также будет произведена адаптация проекта под конкретный регион строительства (с учетом грунтов региона, геологических особенностей вашего участка и местных климатических условий) - БЕСПЛАТНО !!! (кроме проектов со скидкой и проектов наших партнеров).

Любой из проектов, размещенных на сайте kstovo.vipplan.ru мы можем выполнить из требуемых вам строительных материалов: ячеистый бетон (газобетон, пеноблок), керамоблок, кирпич, шлакоблок, бетонный блок, дерево (брус, клееный брус), каркасная технология (деревянный каркас, металлокаркас (ЛСТК)).

Фасад дома и его наружную отделку так же возможно выполнить с применением различных облицовочных материалов: структурной штукатурки, (с утеплителем и без), сайдингом (пластиковый или металлосайдинг), фиброплитами, кирпича.

 
6 Избранные
проекты

Доставка проектов по России: Москва (Московская область), Санкт-Петербург (Ленинградская область), Краснодар, Ростов-на-Дону, Ставрополь, Сочи, Волгоград, Новосибирск, Белгород, Брянск, Воронеж, Саратов, Хабаровск, Астрахань, Нальчик, Владикавказ, Екатеринбург, Тюмень, Самара, Нижний Новгород, Казань, Пермь, Уфа, Челябинск, Красноярск, Ханты-Мансийск, Иркутск, Курган, Оренбург, Омск, Томск, Барнаул, Новокузнецк, Кемерово, Абакан, Чита, Якутск, Южно-Сахалинск, Петропавловск-Камчатский и страны ближнего зарубежья: Белоруссия, Украина, Казахстан